Powrót
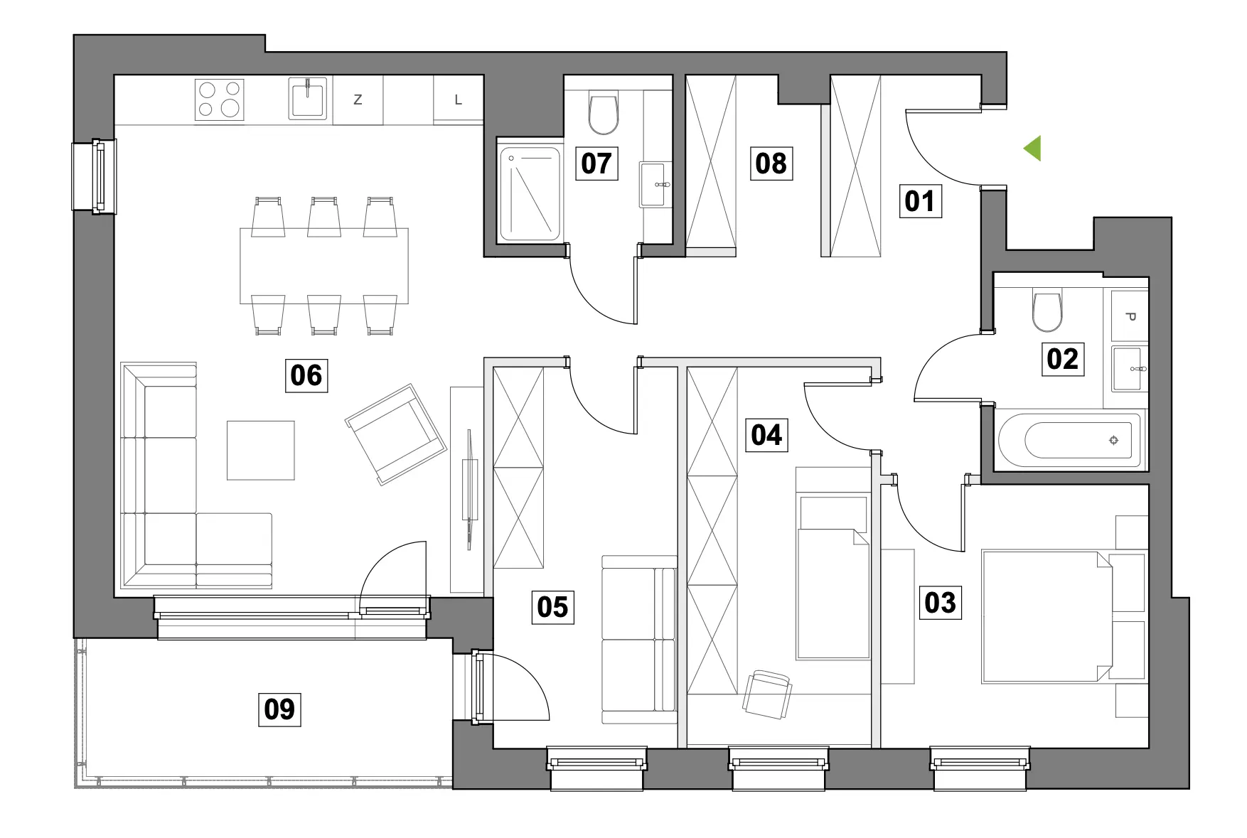
Rzut lokalu
  1. Przedpokój 12.7 m²
  2. Łazienka 4.37 m²
  3. Sypialnia 10.08 m²
  4. Sypialnia 10 m²
  5. Sypialnia 10 m²
  6. Salon z aneksem 27.44 m²
  7. Łazienka 3.65 m²
  8. Garderoba 3.15 m²
  9. Loggia 7.47 m²

Mieszkanie E1.4.281.39 m²

Dostępne

Wybierz lokal usługowy

Wybierz mieszkanie

Wybierz mieszkanie

Wybierz mieszkanie

Wybierz mieszkanie

Wybierz mieszkanie

Wybierz mieszkanie

Położenie lokalu w budynku: 4 piętro

Budynek: E

+48 539 96 96 96
office@master-house.com.pl