Powrót
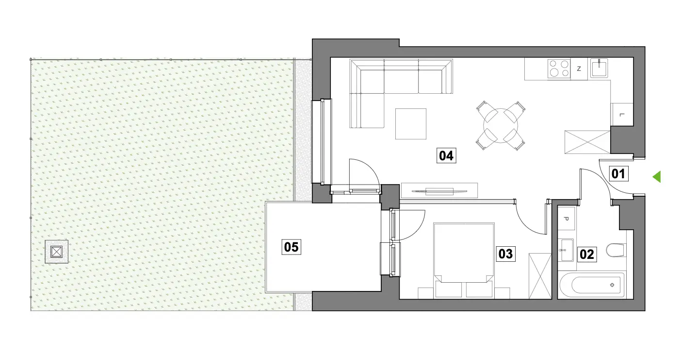
Rzut lokalu
  1. Przedpokój 2.88 m²
  2. Łazienka 4.66 m²
  3. Sypialnia 9.98 m²
  4. Salon z aneksem 25.49 m²
  5. Ogród 65.16 m²

Mieszkanie E2.1.143.01 m²

Dostępne

Wybierz lokal usługowy

Wybierz mieszkanie

Wybierz mieszkanie

Wybierz mieszkanie

Wybierz mieszkanie

Wybierz mieszkanie

Wybierz mieszkanie

Położenie lokalu w budynku: 1 piętro

Budynek: E

+48 539 96 96 96
office@master-house.com.pl