Powrót
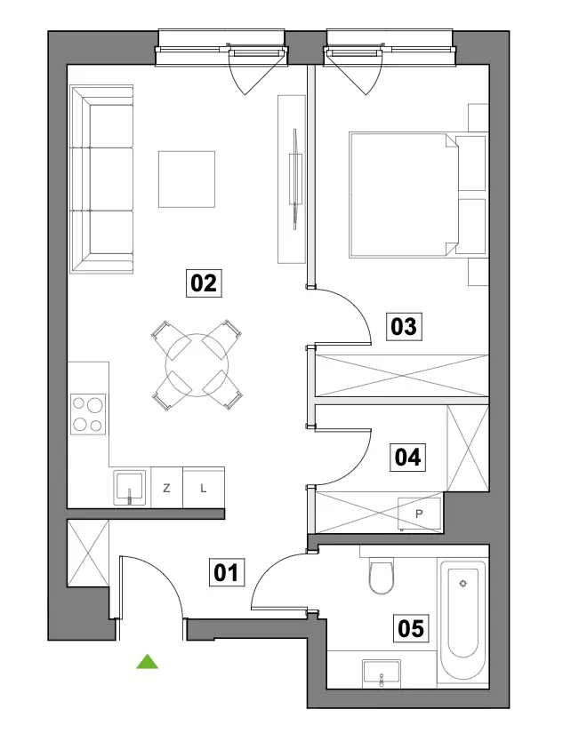
Rzut lokalu
  1. Przedpokój 4.81 m²
  2. Salon z aneksem 21.78 m²
  3. Sypialnia 11.83 m²
  4. Pom. gospodarcze 4.22 m²
  5. Łazienka 4.95 m²

Mieszkanie E2.2.747.59 m²

Dostępne

Wybierz lokal usługowy

Wybierz mieszkanie

Wybierz mieszkanie

Wybierz mieszkanie

Wybierz mieszkanie

Wybierz mieszkanie

Wybierz mieszkanie

Położenie lokalu w budynku: 2 piętro

Budynek: E

+48 539 96 96 96
office@master-house.com.pl