Powrót
Rzut lokalu
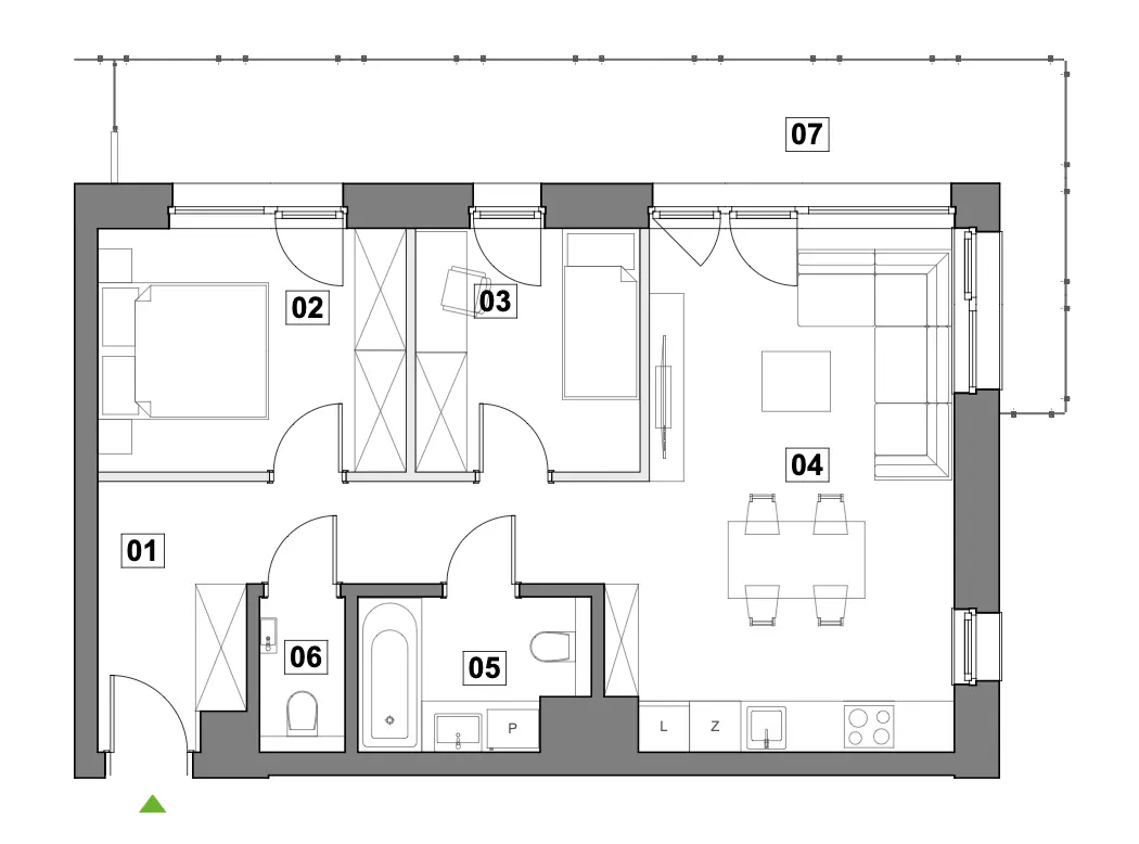
  1. Przedpokój 10.29 m²
  2. Sypialnia 10.29 m²
  3. Sypialnia 7.5 m²
  4. Salon z aneksem 23.3 m²
  5. Łazienka 4.59 m²
  6. WC 1.82 m²
  7. Taras 18.83 m²

Mieszkanie E3.5.457.79 m²

Dostępne

Wybierz lokal usługowy

Wybierz mieszkanie

Wybierz mieszkanie

Wybierz mieszkanie

Wybierz mieszkanie

Wybierz mieszkanie

Wybierz mieszkanie

Położenie lokalu w budynku: 5 piętro

Budynek: E

+48 539 96 96 96
office@master-house.com.pl