Powrót
Rzut lokalu
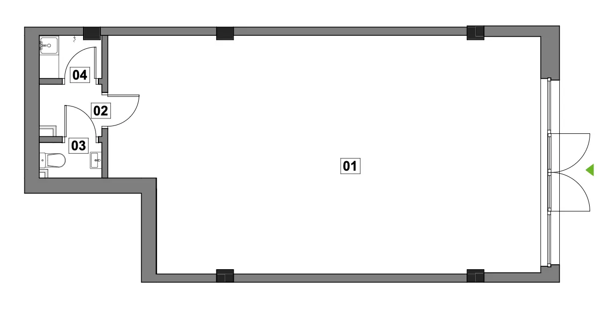
  1. Lokal 64.1 m²
  2. Przedsionek 2.02 m²
  3. Toaleta 1.39 m²
  4. Pom. porządkowe 1.71 m²

U869.22 m²

Dostępne

Wybierz lokal usługowy

Wybierz mieszkanie

Wybierz mieszkanie

Wybierz mieszkanie

Wybierz mieszkanie

Wybierz mieszkanie

Wybierz mieszkanie

Położenie lokalu w budynku: Parter

Budynek: E

+48 539 96 96 96
office@master-house.com.pl