Powrót
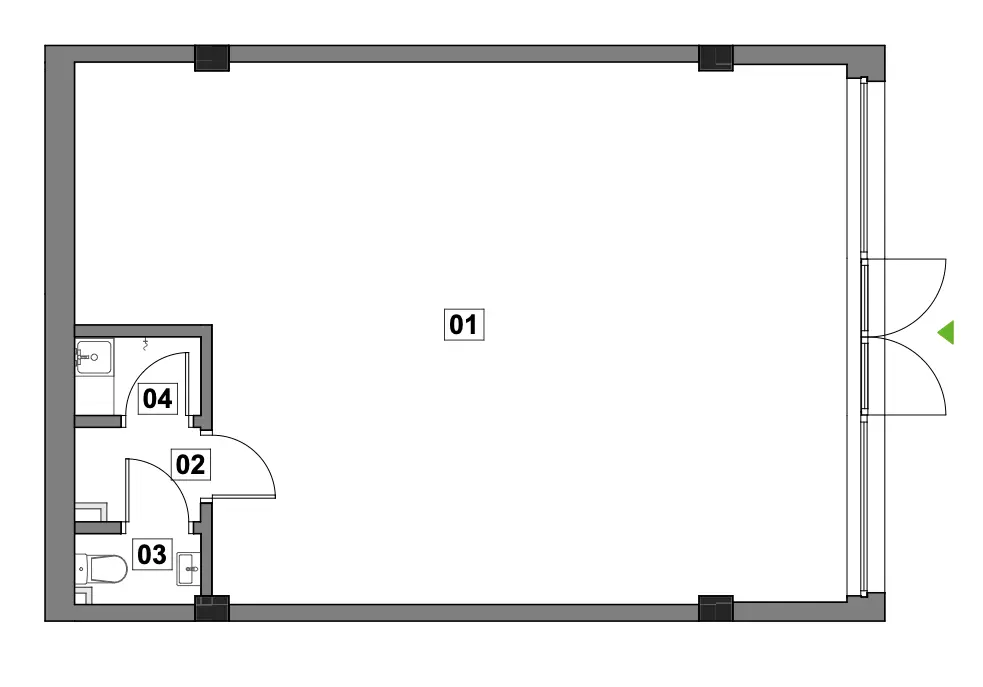
Rzut lokalu
  1. Lokal 61.13 m²
  2. Przedsionek 1.82 m²
  3. Toaleta 1.38 m²
  4. Pom. porządkowe 1.6 m²

U965.93 m²

Dostępne

Wybierz lokal usługowy

Wybierz mieszkanie

Wybierz mieszkanie

Wybierz mieszkanie

Wybierz mieszkanie

Wybierz mieszkanie

Wybierz mieszkanie

Położenie lokalu w budynku: Parter

Budynek: E

+48 539 96 96 96
office@master-house.com.pl